
Photo : CHRISTINE A.L. RESTAINO R.A.
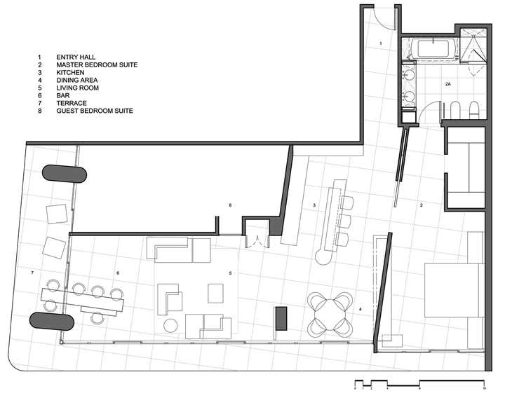
MIAMI PENTHOUSE APARTMENT
Apartment de Christine A.L. Restaino Architect P.C. à Miami, FL
Architectural renovation and interior design of a penthouse pied-a terre apartment in Miami.











Architectural renovation and interior design of a penthouse pied-a terre apartment in Miami.









