
Des Choux Et Des Idees
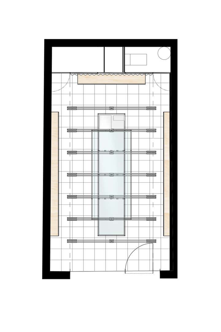
Studio Etienne Bas has recently converted a parking spot for a residential building into a 20 sqm pastry shop for Des Choux et Des Idees. Integrating the retail and the street experience, the architect uses an “urban mirror” to reflect the pastries for passersby. Over the course of the day, the urban mirror gradually changes its positioning with a manual process reflecting passersby instead of merchandise. The different reflections based on opening hours aim at extending the street into the store and vice versa. The store, a monochromatic space, brings together mainly different white textures and materials. The latter concept reflects the layering of pastries served by the store. The circulation in the shop revolves around a central structure that inhabits the main display fridge, the cashier, a storage space, the urban mirror as well as indirect lighting for the unit. The structure is entirely composed of a 2cm steel structure white painted profile







